hr en de

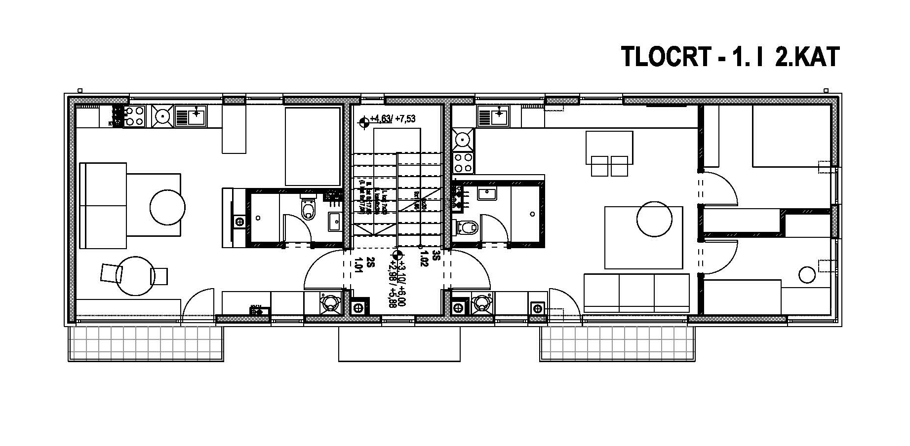
Stambena zgrada - Kajzerica

Povratak

Naziv projekta

Stambena zgrada - Kajzerica

Naziv investitora/klijenta

Hashtag d.o.o.

Lokacija građevine

Kajzerica, Zagreb

Namjena građevine

Stambena

Veličina građevine (cca Brutto površina)

500 m2

Opis opsega projektiranja/usluge

Glavni projektant na izradi projektne dokumentacije; idejno arhitektonsko rješenje i glavni projekt građevine.

Godina izrade projekta

2015.

Godina realizacije/izgradnje građevine

2016.