hr en de

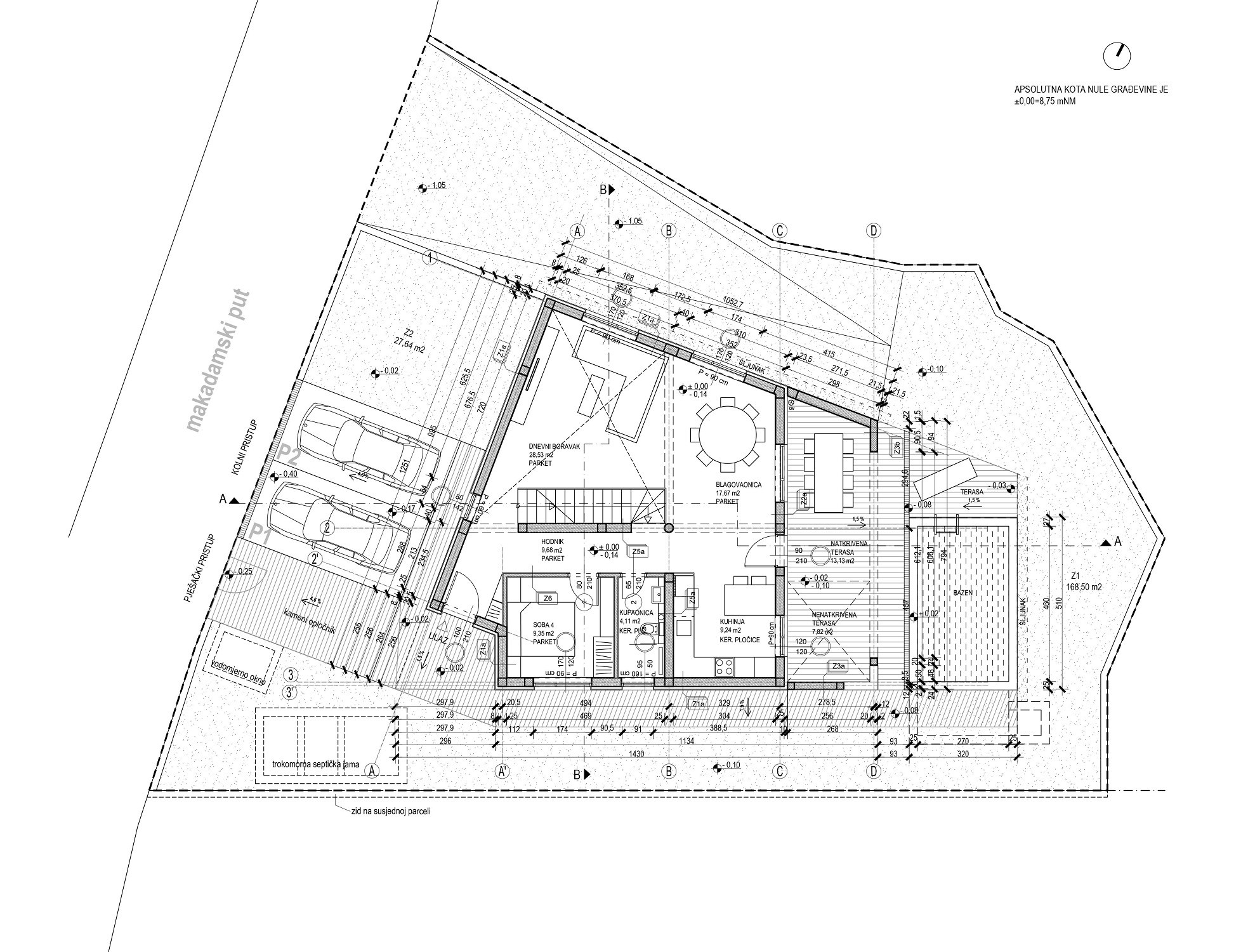
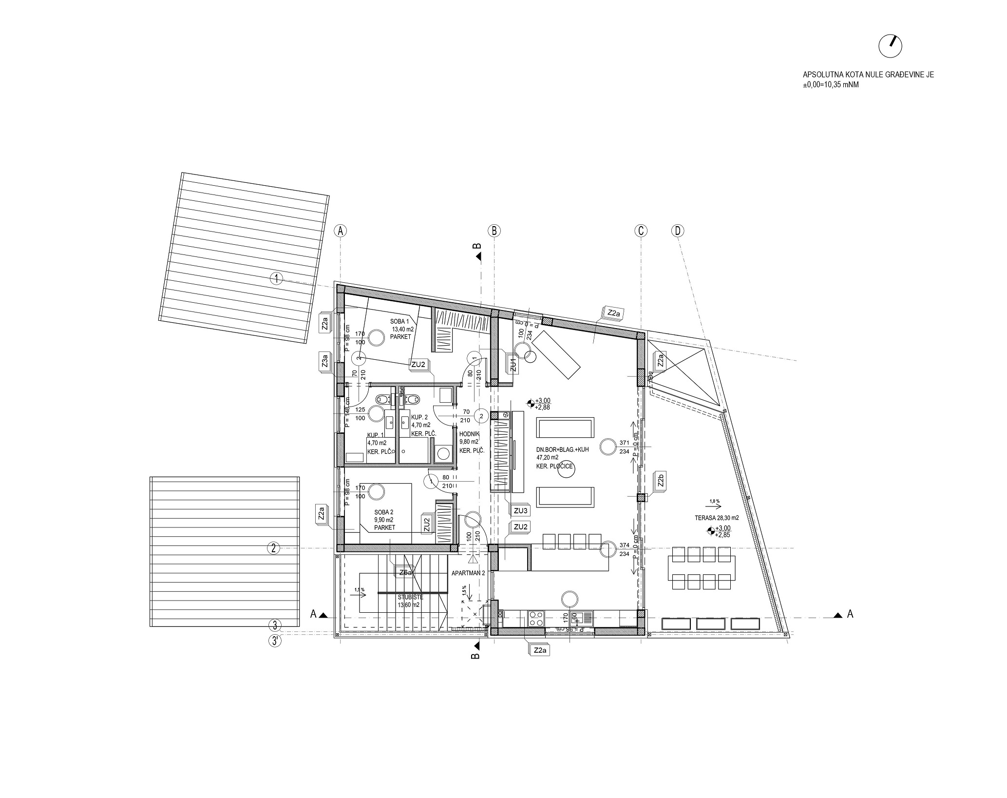
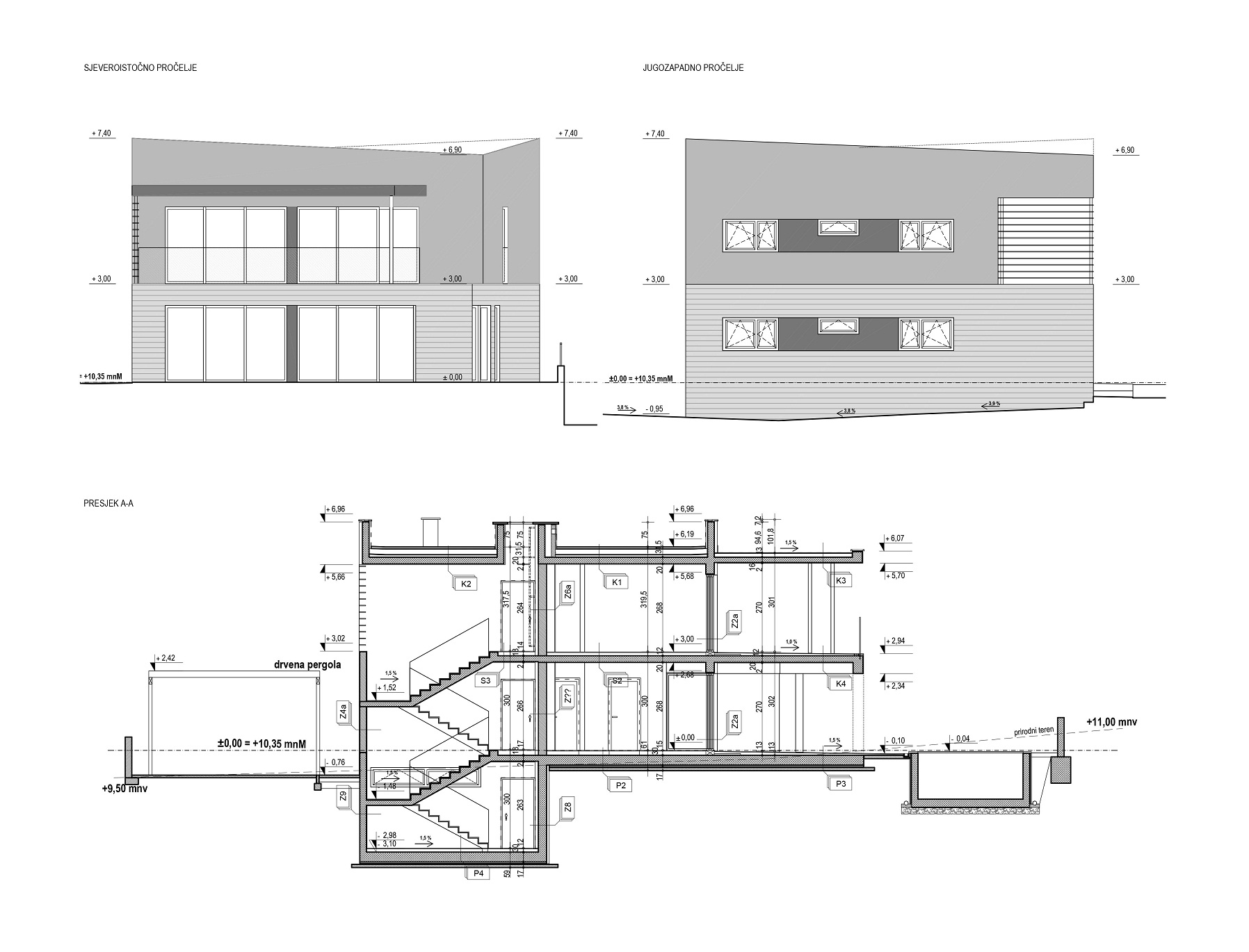
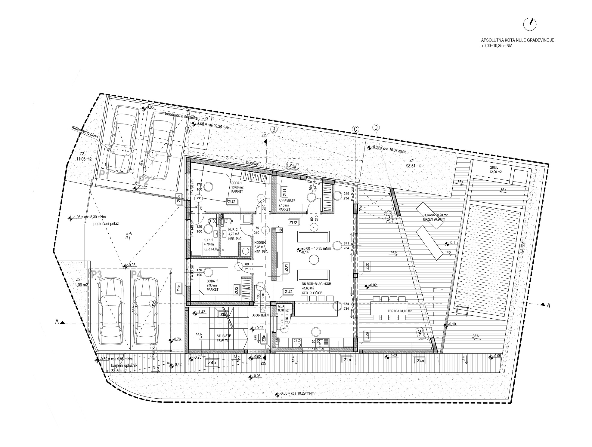
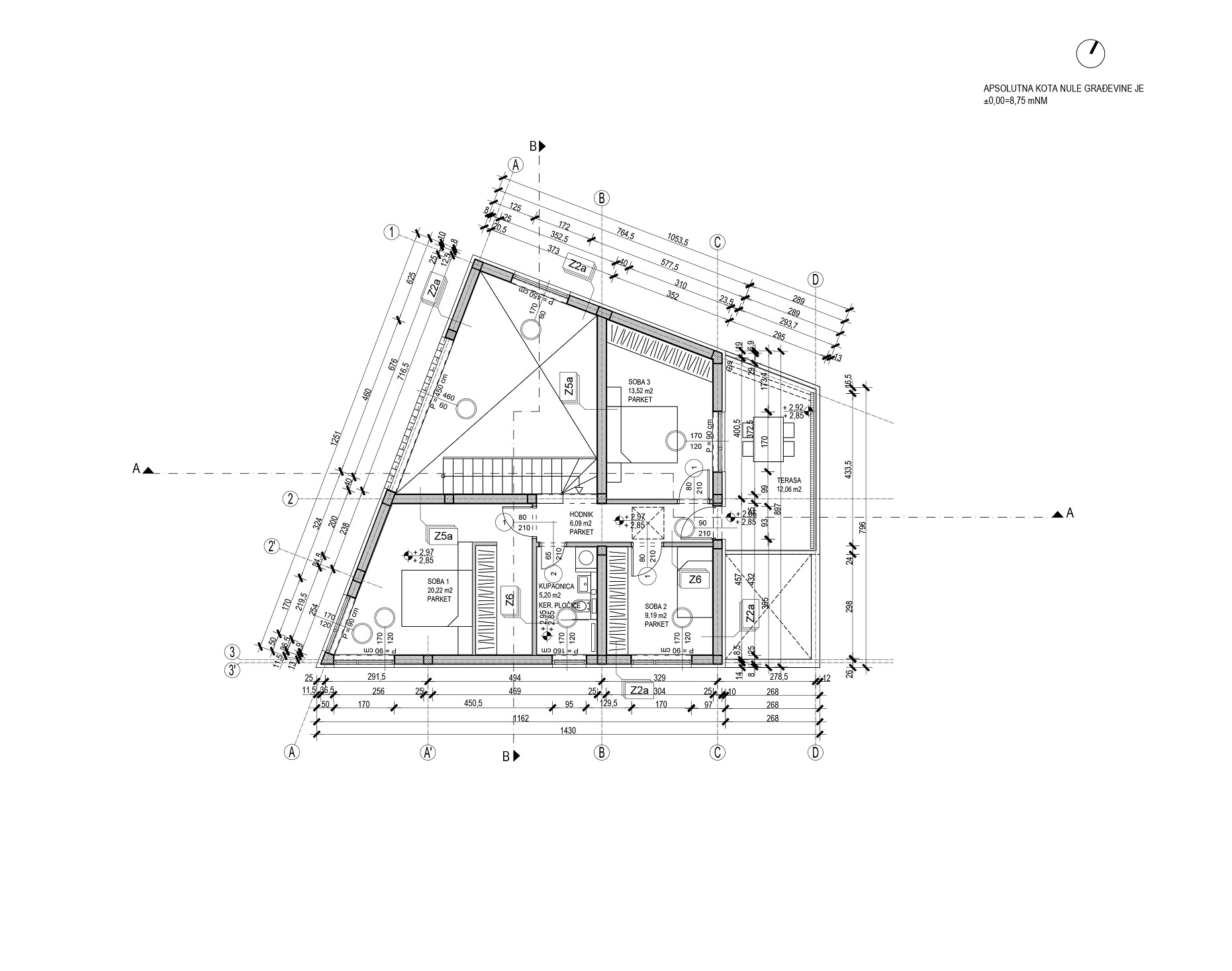
Stambene zgrade P1 i P2 sa bazenom - Jezera

Povratak

Naziv projekta

Stambene zgrade P1 i P2 sa bazenom - Jezera

Naziv investitora/klijenta

Tehnoart d.o.o.

Lokacija građevine

Jezera, Murter

Namjena građevine

Stambena

Veličina građevine (cca Brutto površina)

400 m2

Opis opsega projektiranja/usluge

Glavni projektant na izradi projektne dokumentacije; idejno arhitektonsko rješenje i glavni projekt građevine.

Godina izrade projekta

2015. / 2016.

Godina realizacije/izgradnje građevine