hr en de

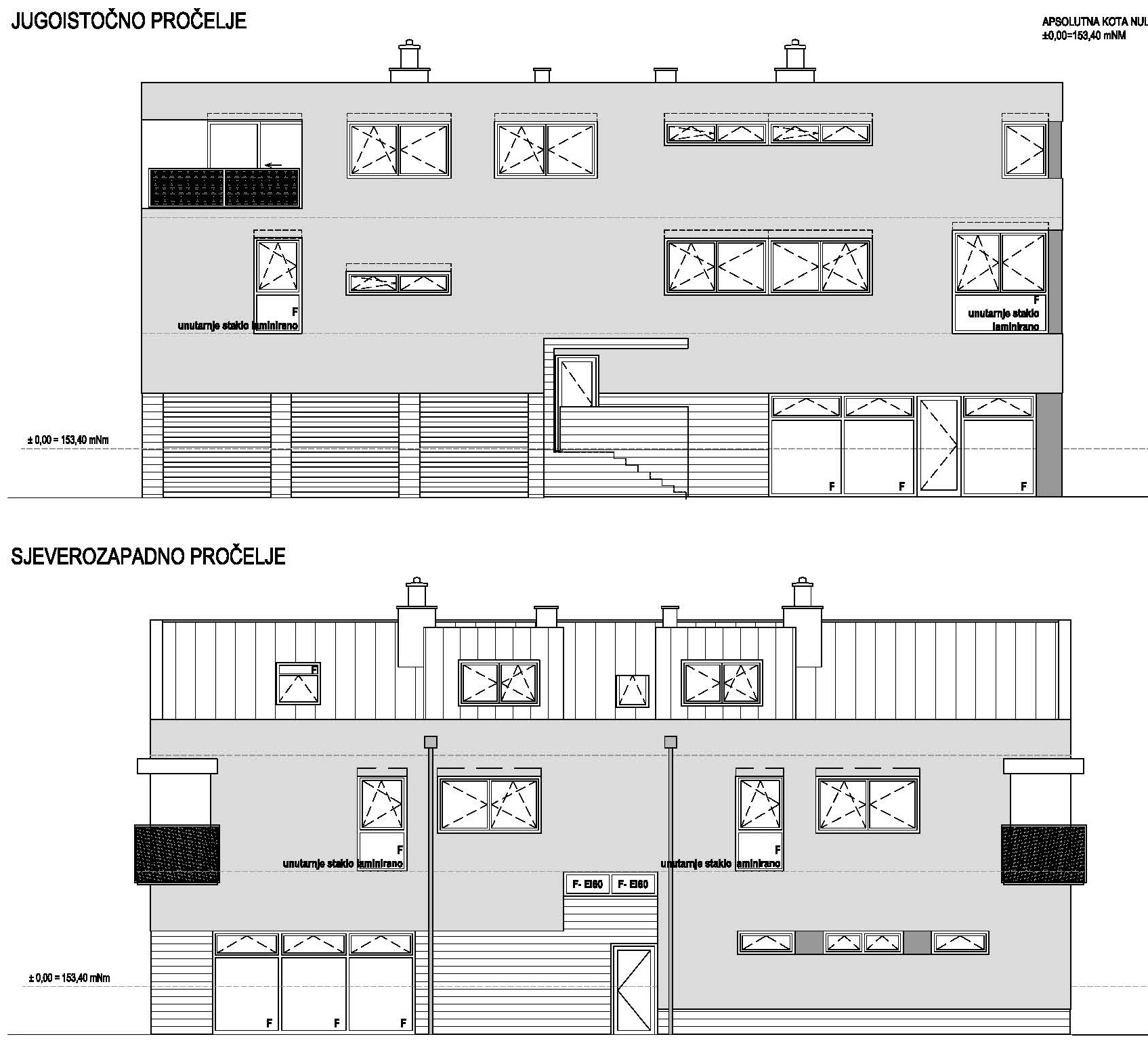
Stambeno - poslovna zgrada - Samobor

Povratak

Naziv projekta

Stambeno - poslovna zgrada - Samobor

Naziv investitora/klijenta

JEDINSTVO d.d.

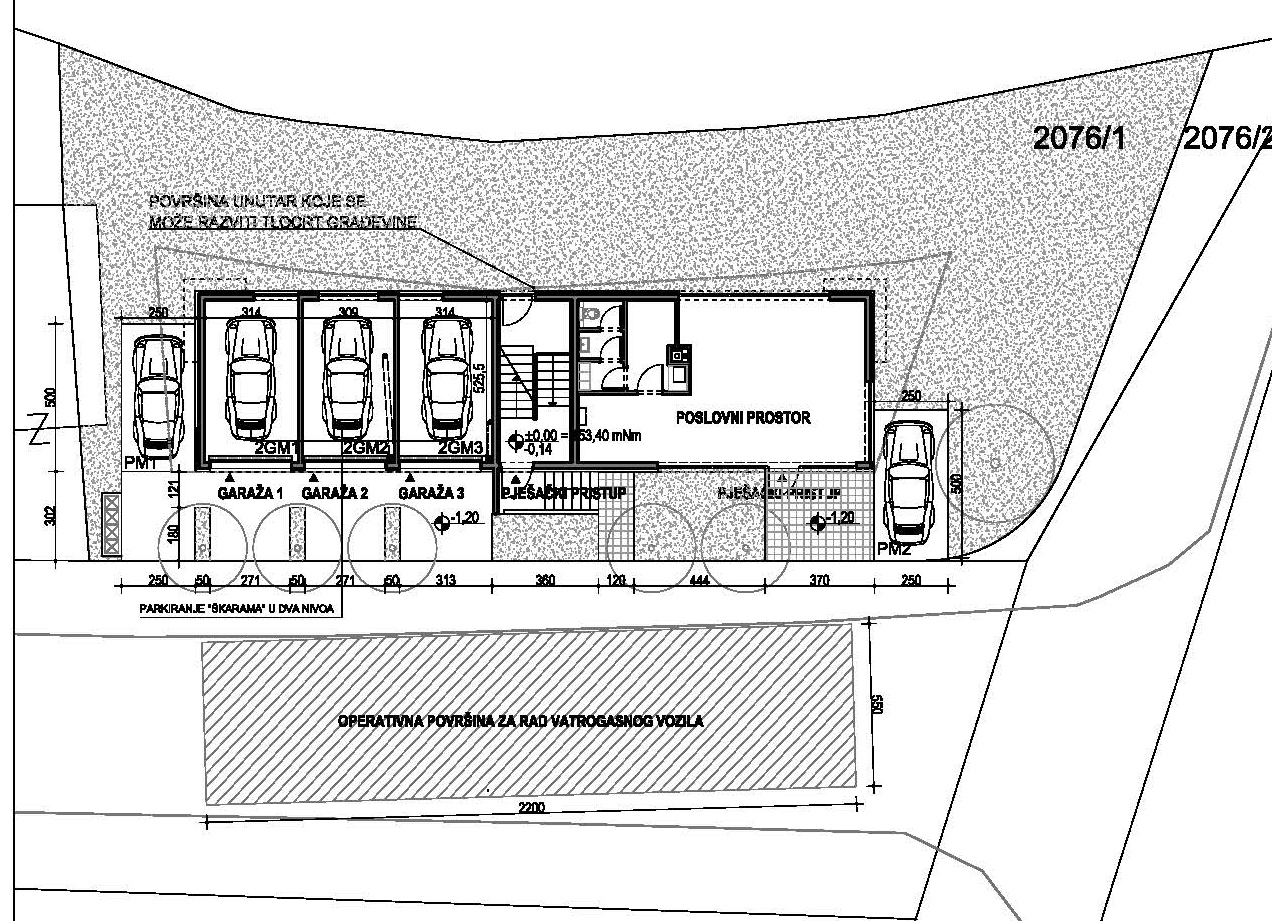
Lokacija građevine

Samobor

Namjena građevine

Stambeno - poslovna

Veličina građevine (cca Brutto površina)

400 m2

Opis opsega projektiranja/usluge

Glavni projektant na izradi projektne dokumentacije glavnog arhitektonskog projekta građevine.

Godina izrade projekta

2015.

Godina realizacije/izgradnje građevine

2016.